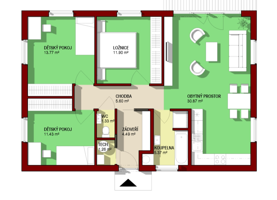
Přízemní dům 4+kk se sedlovou střechou s optimálním rozmístěním místností.
Dům má jednoduchý tvar, účelnost a rovné linie garantují nízkou cenu údržby i vlastního provozu. Plnohodnotné rozměry pokojů umožnují bezproblémové bydlení čtyřčlenné rodině.
Jedná se výbornou a levnou alternativu pro jakoukoliv změnu, např. z bytového domu, nebo máte-li možnost si pořídit pozemek s minimálními rozměry dle parametrů níže, lze prodejem bytu, případně staršího domu, bez dalších finančních výloh získat více soukromí a posunout se na mnohem vyšší úroveň bydlení.
Cena vzorového domu 4+kk je 1 800 000 Kč.
Cena obsahuje:
Cena neobsahuje:

